Акционная цена
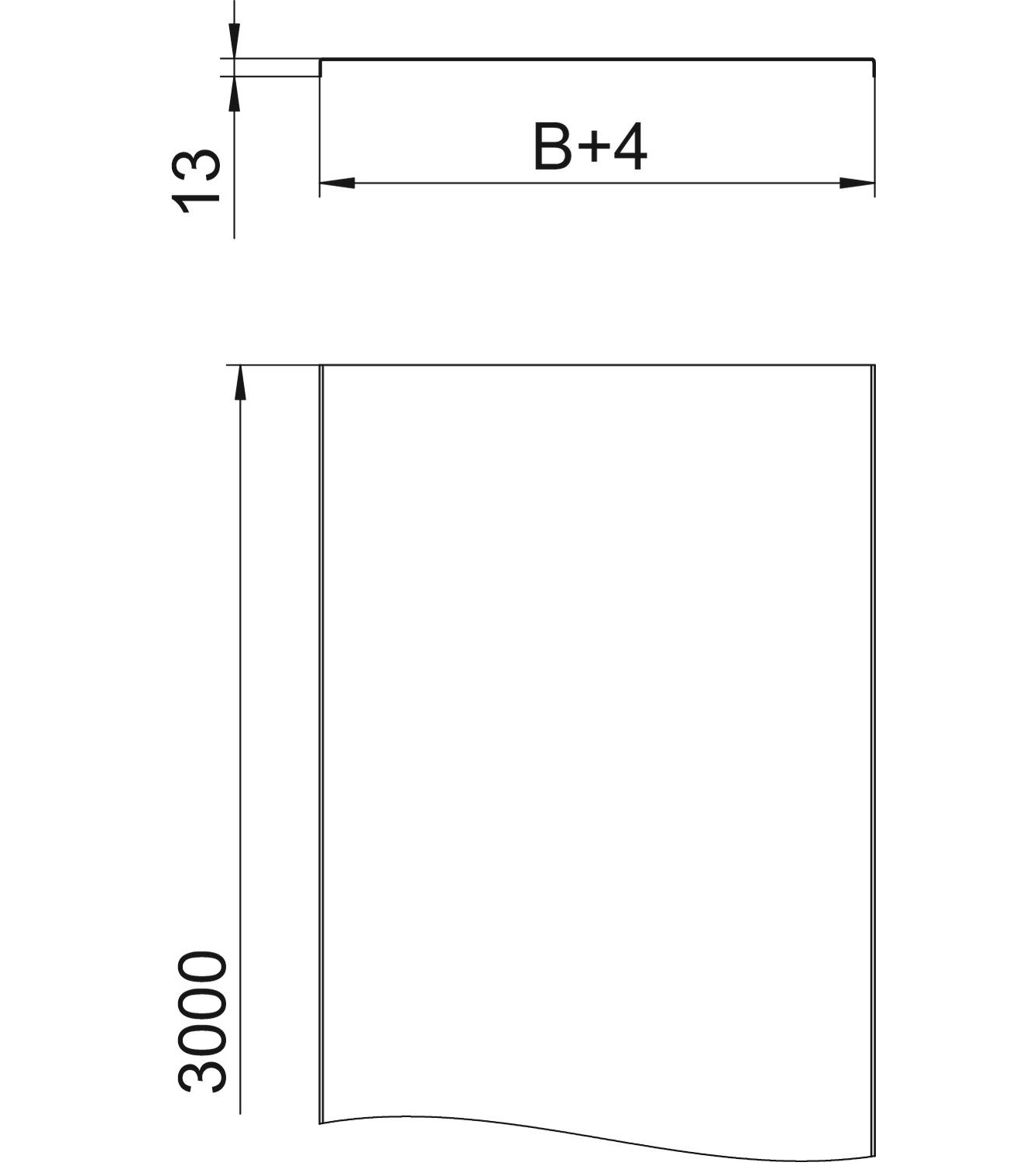
Кришка для лотків і кабельростів 100х3000x0.75, FS (18-22 мкм)
Цена
154.86 грн
Кратність замовлення - 3 м.п.; Вказана вартість - за1 м.п.;
- Арт.:6052103
- Производитель:OBO Bettermann
Действующие акции
Технические характеристики
Кришка універсальна для всіх типів кабельних лотків.
При використанні кришки на відкритому повітрі необхідно вжити додаткових заходів щодо впливу вітру.
- Довжина - 3000 мм
- Ширина - 100 мм
- Товщина - 1 мм
Cмотрите также




