Акционная цена
Лоток MKSMU (1мм) неперф., 60х150х3050, FS (18-22 мкм)
Цена
378.01 грн
Кратність замовлення - 3 м.п.; Вказана вартість - за1 м.п.;
- Арт.:6059232
- Производитель:OBO Bettermann
Действующие акции
Технические характеристики
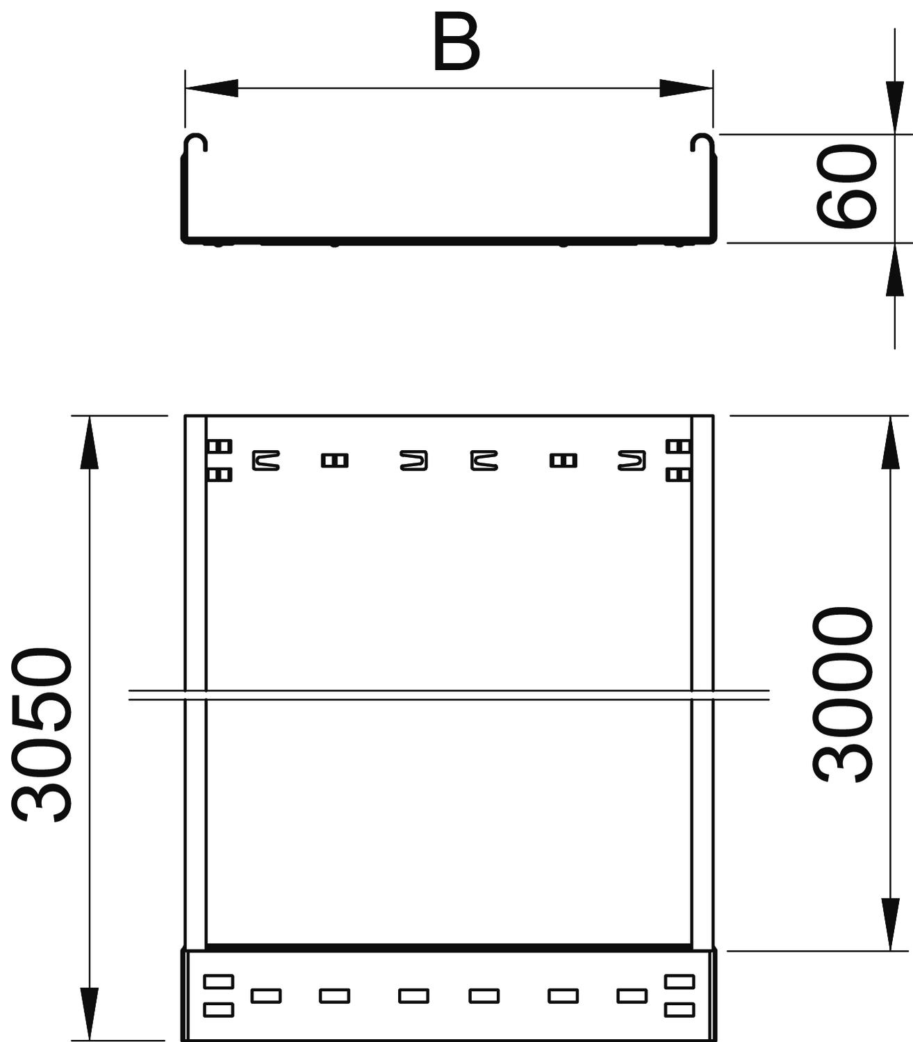
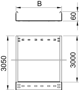
Неперфорований кабельний лоток із вбудованою системою швидкого кріплення. Корисна довжина кабельного лотка становить 3000 мм.
- Довжина - 3000 мм
- Ширина - 150 мм
- Висота - 60мм
- Товщина профілю - 1,00 мм
- Матеріал - Сталь з оцинкованим покриттям
Cмотрите также




